Das ehemalige Burgkino liegt direkt im Zentrum von Klosterneuburg, im Jugendstil errichtet, überragt es mit seiner imposanten Höhe die Umgebung bei Weitem. Der zweigeschossige Dachboden besticht durch seinen Mittelsattelit, dem kleinen Balkon am Erker und den attraktiven ovalen Fenstern. Auf diesen vorhandenen 350 m² entstand außergewöhnlicher Wohnraum und wurde gerade fertiggestellt. Die Ausstattung ist in einer sehr hohen Qualität ausgeführt und bei der Wärme und Wassergewinnung wurde besonders auf Nachhaltigkeit geachtet.Im folgendem Link , können Sie weitere Infos über die Geschichte des Hauses und über das Projekt erfahren.
Dieses Projekt hat 2024 den KLosterneuburger Stadbildpreis gewonnen !
Weiter Fotos und Visualisierungen folgen.
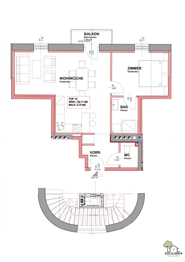
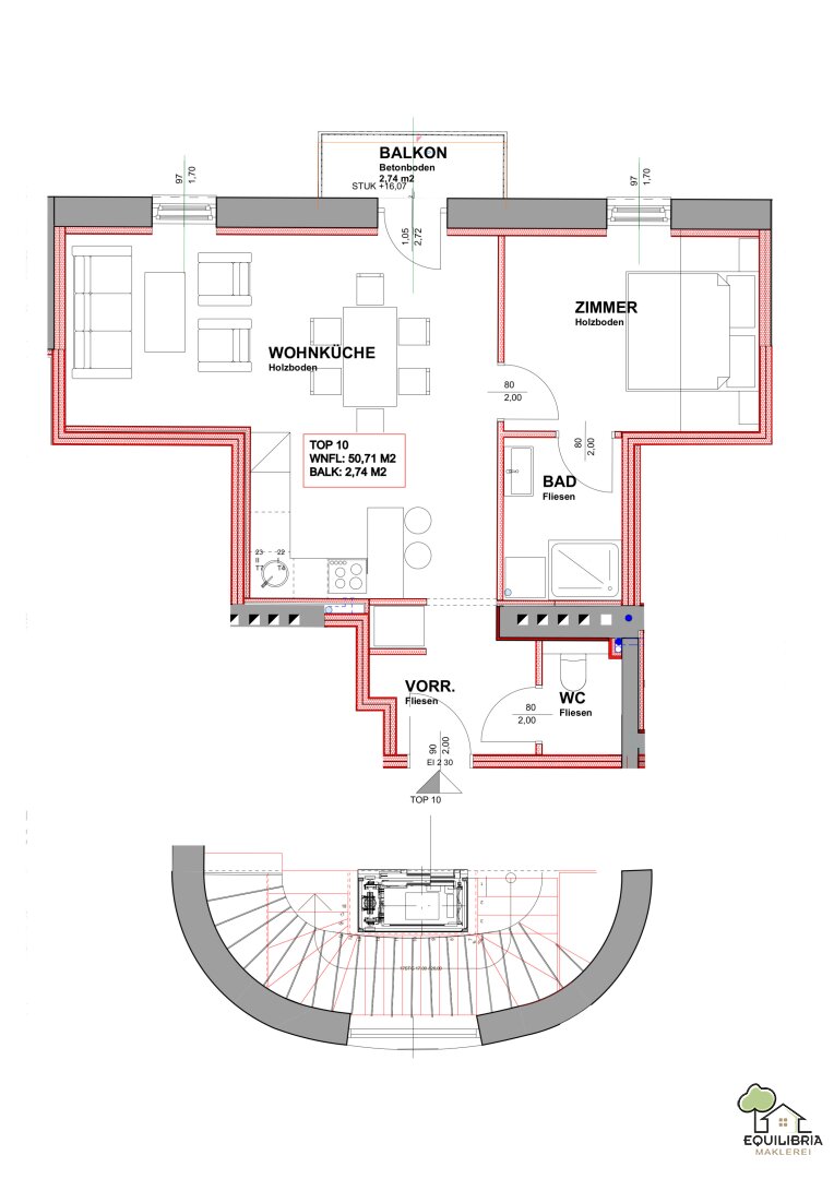
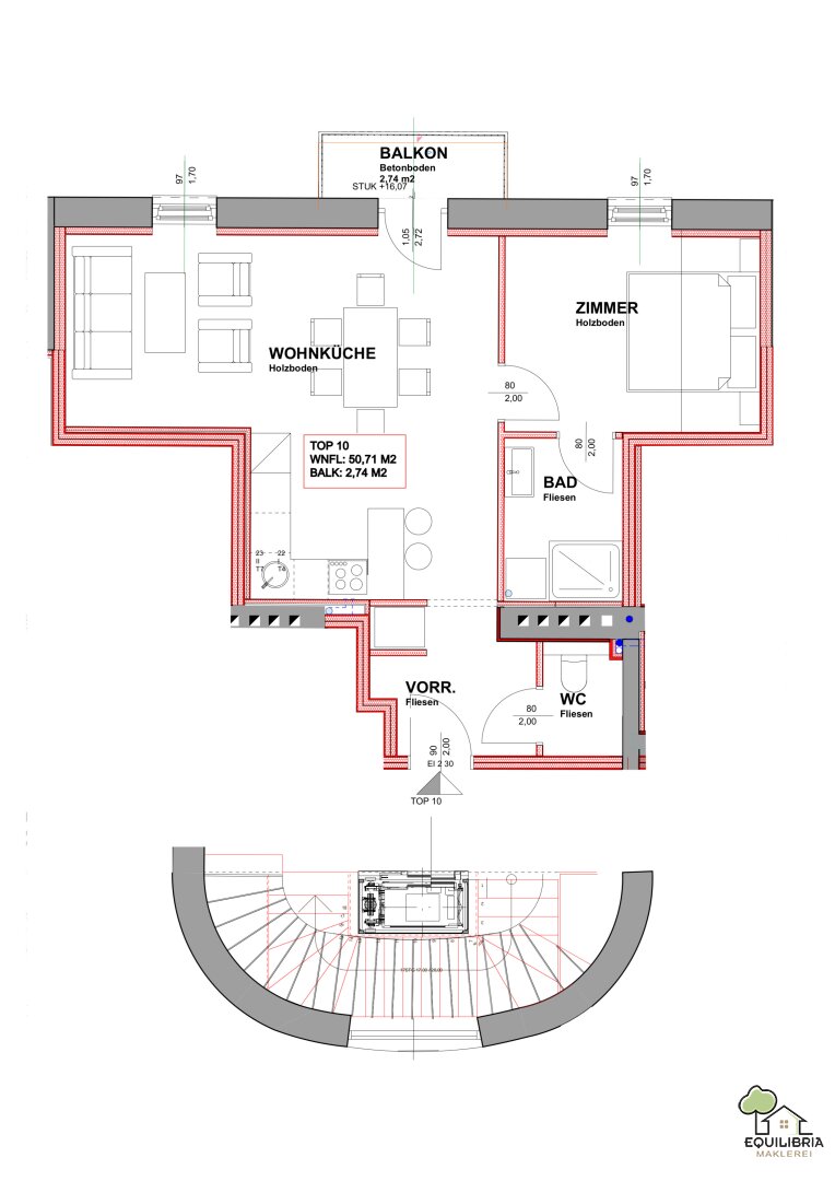
Top 10
Lage: 1. DG.
Wohnfläche : 50,73m2
Balkon : 2,74m2
Für nähere Informationen , steht Ihnen Hr. Wolfgang Konsel unter der Tel. Nr. 0676/3505425 , oder per Mail: wolfgang.konsel@equilibria.at sehr gerne zur Verfügung.
Wir weisen auf ein wirtschaftliches Naheverhältnis zum Abgeben hin, welches aus der Verwaltungstätigkeit der WEG Karl-Domanig-Gasse 5 besteht (andere Firma der equilibria-Gruppe).
Hinweis gemäß Energieausweisvorlagegesetz: Ein Energieausweis wurde vom Eigentümer bzw. Verkäufer, nach unserer Aufklärung über die generell geltende Vorlagepflicht, sowie Aufforderung zu seiner Erstellung noch nicht vorgelegt. Daher gilt zumindest eine dem Alter und der Art des Gebäudes entsprechende Gesamtenergieeffizienz als vereinbart. Wir übernehmen keinerlei Gewähr oder Haftung für die tatsächliche Energieeffizienz der angebotenen Immobilie.
Wir weisen darauf hin, dass zwischen dem Vermittler und dem zu vermittelnden Dritten ein familiäres oder wirtschaftliches Naheverhältnis besteht.
Infrastruktur / Entfernungen
Gesundheit
Arzt <500m
Apotheke <500m
Klinik <4.000m
Krankenhaus <500m
Kinder & Schulen
Schule <500m
Kindergarten <500m
Universität <4.000m
Höhere Schule <7.000m
Nahversorgung
Supermarkt <500m
Bäckerei <500m
Einkaufszentrum <4.500m
Sonstige
Bank <500m
Geldautomat <500m
Post <1.000m
Polizei <1.000m
Verkehr
Bus <500m
Straßenbahn <5.500m
U-Bahn <7.500m
Bahnhof <1.000m
Autobahnanschluss <3.000m
Angaben Entfernung Luftlinie / Quelle: OpenStreetMap
