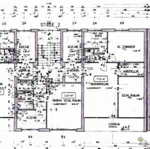
Im Zentrum der oberen Stadt gelegen befindet sich diese renovierungsbedürftige 3-Zimmer-Wohnung. Im 1. OG (ohne Aufzug) angesiedelt besticht die Wohnung durch einen sehr praktischen Grundriss mit 2 Schlafzimmern, einem Wohnzimmer, einer breiten Loggia und den sonstigen Nebenräumen (WC, Bad, Küche, Vorzimmer). Ein Schlafzimmer hat einen begehbaren Schrankraum integriert. Das andere orientiert sich auf die Loggia, bei einer Sanierung könnte man hier eine Balkontür einbauen. 77,05 m2 Wohnnutzfläche, hier sind die 9,2 m2 der Loggia (aktuell mit Schiebelementen verglast) einberechnet. Vor allem die Nassräume sowie Fenster und Böden sind schon in die Jahre gekommen, eine gute Gelegenheit, Ihre persönliche Note im Rahmen einer Revitalisierung einzubringen.
Im Außenbereich gibt es einen fix zugeordneten Außenstellplatz (Zubehörseigentum, kein eigenes WE-Objekt), welcher durch Schrankenanlage abgesichert ist. Ein über 16 m2 großes Abteil im Keller runden das Angebot ab.
Die Infrastruktur könnte nicht besser sein, Post, Billa, Trafik sind im Umkreis von 100 Metern. Die Gastronomie der oberen Stadt (auch die Heurigen in der Agnesstraße) können Sie alle Fußäufig erreichen. Schulen und der öffentliche Verkehr sind optimal angebunden.
Die Wohnung eignet sich durch den Grundriss für viele Nutzungsmöglichkeiten bis hin zur Familienwohnung. In der Vermietung sind die 2 getrennt begehbaren Schlafzimmer auch für eine 2-er WG geeignet.
Wenn Sie die Renovierungsarbeiten nicht scheuen sollten Sie sich einen Besichtigungstermin vereinbaren. Frau Engelhardt steht Ihnen unter claudia.engelhardt@equilibria.at oder 0664-201 9999 gerne für eine Terminvereinbarung zur Verfügung.
Infrastruktur / Entfernungen
Gesundheit
Arzt <500m
Apotheke <500m
Klinik <4.500m
Krankenhaus <1.000m
Kinder & Schulen
Schule <500m
Kindergarten <500m
Universität <3.500m
Höhere Schule <6.500m
Nahversorgung
Supermarkt <500m
Bäckerei <500m
Einkaufszentrum <4.000m
Sonstige
Bank <500m
Geldautomat <500m
Post <500m
Polizei <500m
Verkehr
Bus <500m
Straßenbahn <5.000m
U-Bahn <7.000m
Bahnhof <1.000m
Autobahnanschluss <3.000m
Angaben Entfernung Luftlinie / Quelle: OpenStreetMap
