Wir sind mit dem Verkauf einer sehr gut geschnittenen Wohnung in zentraler Lage beauftragt, die nicht nur optisch punktet, sondern auch über viele Vorzüge verfügt und zudem eine sehr gute Infrastruktur aufweist- und das alles im beliebten 2. Bezirk in der Nähe des Praters bzw. der Jesuitenwiese. Die Wohnung befindet sich daher in unmittelbarer Umgebung von großzügigen Grünflächen und Freizeitanlagen! Hier lohnt es sich, einen genaueren Blick zu riskieren!
Die Wohnung befindet sich im Erdgeschoss eines Mehrfamilienhauses (Baujahr 1964) und ist derzeit gut und vor allem befristet vermietet. Der Mietvertrag läuft nur noch bis 31.5.2027.
Die Nettomiete macht pro Jahr EUR 10.669,- aus und ist indexiert. Die 3 Prozent-Schwelle wird in Kürze erreicht!
Somit können Sie entscheiden, ob Sie die Wohnung nach Ablauf des Mietvertrags Weiterhin zu idealen Konditionen vermieten möchten oder ob Sie die Wohnung für Ihren Eigenbedarf verwenden möchten. Sollten Sie jetzt schon die optimale Studentenwohnung für Ihre Kinder suchen, sind Sie damit auch bestens beraten. Auch eine Studenten-WG wäre hier gut möglich und somit eignet sich die Wohnung für eine 2er- oder eine 3-er WG. Zu Fuß, oder mit dem Rad durch den Prater zur UNI, was will man mehr?
HARDFACTS:
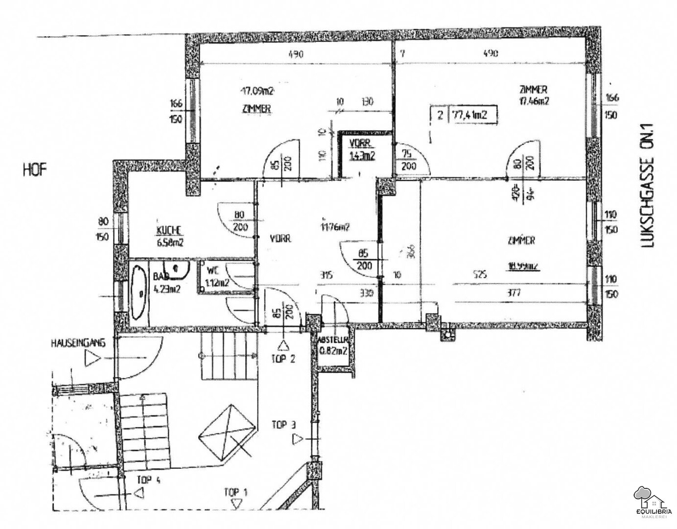
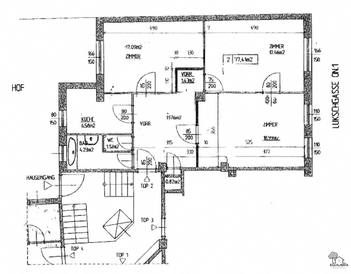
- rd. 77,5 m2 Wohnfläche
- 3 Schlafzimmer - alle zentral begehbar und ungefähr gleich groß - daher ideal auch für WG´s
- Parkettboden und Fliesen im Vorzimmer und in den Nassräumen sowie im Abstellraum
- Moderne Markenküche (2018) mit Ceranfeld, Dunstabzug, Geschirrspüler und Backrohr wurde 2024 erneuert
- Badezimmer mit Fenster mit Badewanne und Handtuchheizer
- Separates WC
- Abstellraum
Die Wohnung verfügt über eine Elektroheizung. Die 3 Nachtspeicheröfen wurden erst im Dezember 2024 gegen neue getauscht (Kosten ca. EUR 11.000,-)
VORZÜGE:
- Thermische Sanierung des Hauses - daher auch gute Energiewerte - siehe Energieausweis
- Sicherheitstür/Wohnungseingangstür
- Ideale Raumaufteilung
- Schöne und zeitlose Küche
- Badezimmer mit Fenster
- Blick ins Grüne (Bäume)
- Fliesen und Parkett
- Edle weiße Türen
- Kellerabteil - zusätzlich zum Abstellraum
- Ideale Infrastruktur
- Geeignet für WG´s - ideal zum Vermieten
- Direkte Rendite mit Übernahme des laufenden Mietvertrags (endet mit 31.5.2027)
Auch ein Kellerabteil gehört zur Wohnung und bietet daher neben dem Abstellraum in der Wohnung selbst über ausreichend Stauraum.
Die Informationen beruhen auf Angaben des Eigentümers und den uns vorliegenden Unterlagen.
INFRASTRUKTUR:
Die freundliche Wohnung mit Blick ins Grüne liegt in unmittelbarer Nähe zum Prater und bietet daher unzählige Freizeitmöglichkeiten (Kaiserwiese, Praterallee) und die Weite des Praters mit all seinen Annehmlichkeiten. In der Umgebung findet man sämtliche Einrichtungen des täglichen Lebens: Arztpraxen, Apotheken, Krankenhäuser, Schulen, Universitäten und Kindergärten. Der 3. Bezirk mit seinem Hotspot Rochusmarkt und die Landstraßer Hauptstraße (Einkaufszentrum) ist über die Fußgängerbrücke gut erschlossen, d.h. mit Rad oder Scooter sind es wenige Minuten. Auch die Versorgung mit Nahversorgern ist ideal. Mit der Linie 80 A (nur 1 Minute von der Wohnung entfernt), gelangen sie innerhalb von wenigen Minuten zum Praterstern. Aber auch die U3 (Station Kardinal-Nagl-Platz) ist leicht zu erreichen.
Wir freuen uns darauf, Ihnen die Wohnung persönlich - in Abstimmung mit den aktuellen Mietern - zeigen zu dürfen und freuen uns auf Ihre Anfragen.
Für weitere Informationen steht Ihnen Frau Mag. Eva-Maria Rauchensteiner unter eva.rauchensteiner@equilibria.at zur Verfügung.
Wir weisen auf ein wirtschaftliches Naheverhältnis hin, welches aus der Verwaltungstätigkeit der WEG Schüttelstraße 101/Lukschgasse 1 und der Mieterverwaltung für die Abgeber entsteht.
Wir weisen darauf hin, dass zwischen dem Vermittler und dem zu vermittelnden Dritten ein familiäres oder wirtschaftliches Naheverhältnis besteht.
Infrastruktur / Entfernungen
Gesundheit
Arzt <500m
Apotheke <1.000m
Klinik <1.000m
Krankenhaus <1.000m
Kinder & Schulen
Schule <500m
Kindergarten <500m
Universität <1.000m
Höhere Schule <1.000m
Nahversorgung
Supermarkt <500m
Bäckerei <1.000m
Einkaufszentrum <1.000m
Sonstige
Geldautomat <500m
Bank <500m
Post <1.000m
Polizei <500m
Verkehr
Bus <500m
U-Bahn <1.000m
Straßenbahn <1.000m
Bahnhof <1.000m
Autobahnanschluss <1.000m
Angaben Entfernung Luftlinie / Quelle: OpenStreetMap
