Sie suchen ein Haus in in der Nähe von Venedig? Dann haben wir hier vielleicht das Richtige für Sie! Der Stadtteil Mestre ist nicht weit vom historischem Zentrum Venedigs entfernt, bietet aber die Vorzüge des Festlandes! Keine Feuchtigkeit, Nähe zu Supermärkten und Geschäften aller Art, Kinos, Theatern, Museen und Verkehrsanbindungen aller Art. Das Haus befindet sich ca 50 Meter vom Rathaus, ca 200 Meter vom Turm des Hauptplatzes, ca 70 Meter von der Bushaltestelle und ca 300 Meter von der Straßenbahnhaltestelle zum Piazzale Roma, dem Zugangsplatz zum historischen Zentrum Venedigs.
Das Haus im Zentrum Mestres befindet sich in einer luxuriösen Wohnanlage und gliedert sich in 2 Objekte.
Ein kleines ebenerdiges Geschäftslokal mit separatem Eingang (nicht Kaufgegenstand, kann aber auch erworben werden).
Das restliche Haus bestehend aus
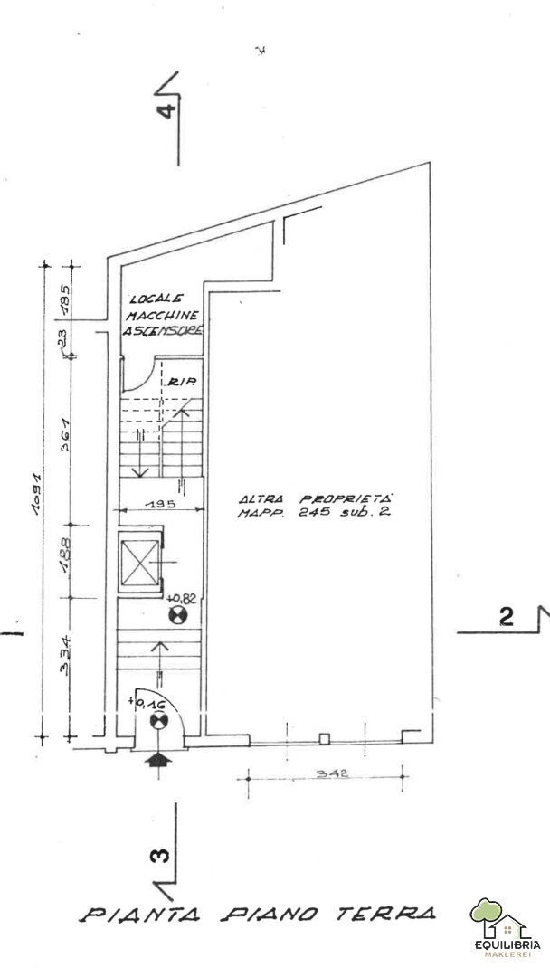
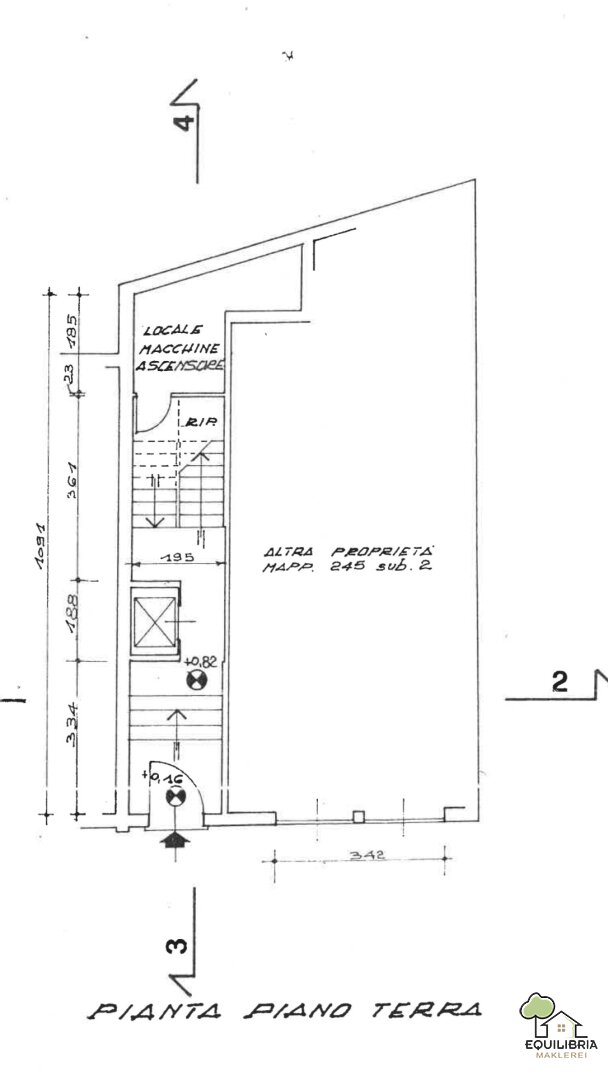
a) Eingangsbereich im EG mit Stiegenhaus und Zugang zum Penthouse-Lift
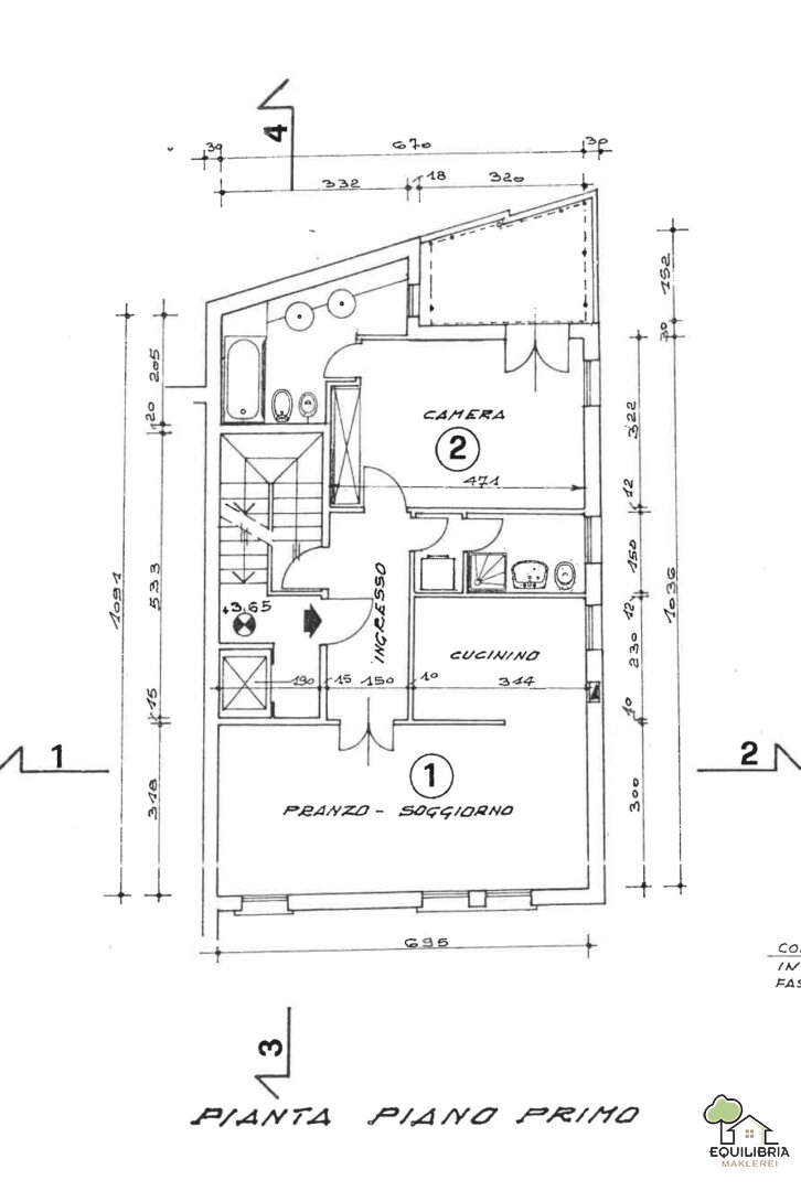
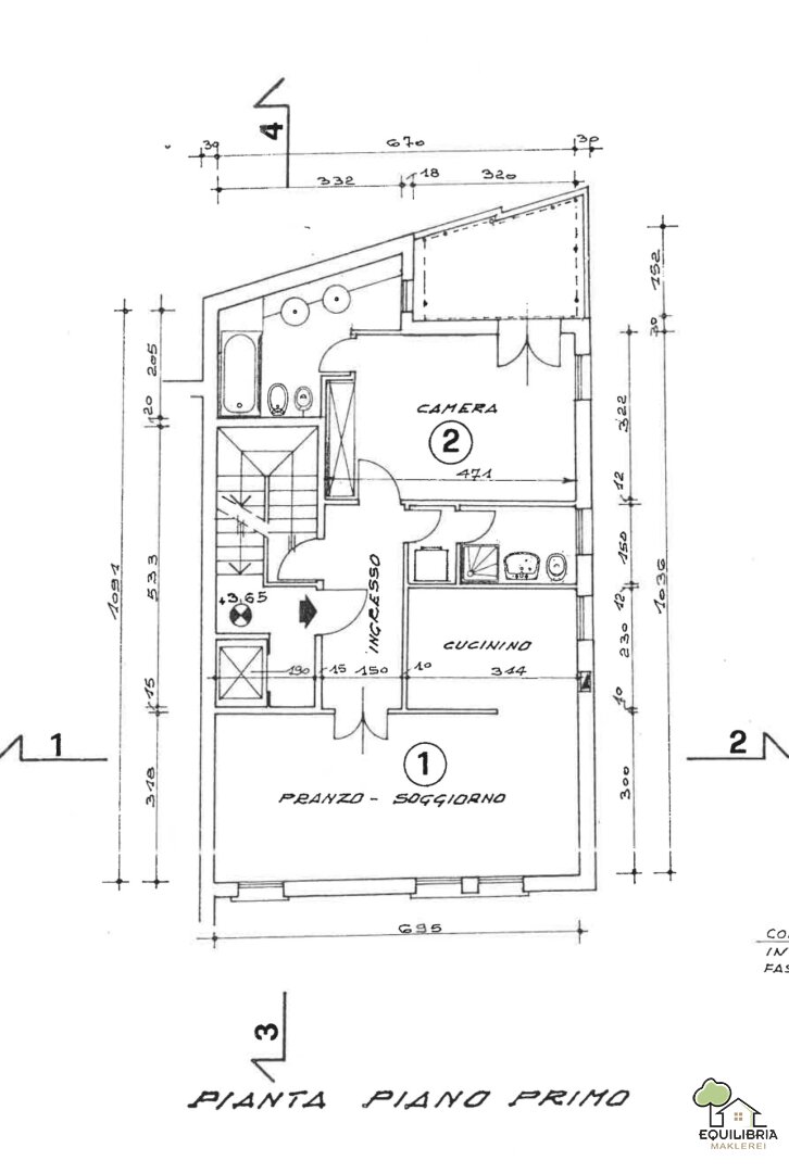
b) im 1. OG befindet sich das große Wohnzimmer mit angeschlossener Küche, ein Bad, ein WC, ein Abstellraum, das zentrale Vorzimmer sowie eine Terrasse, welche vom Schlafzimmer aus betretbar ist
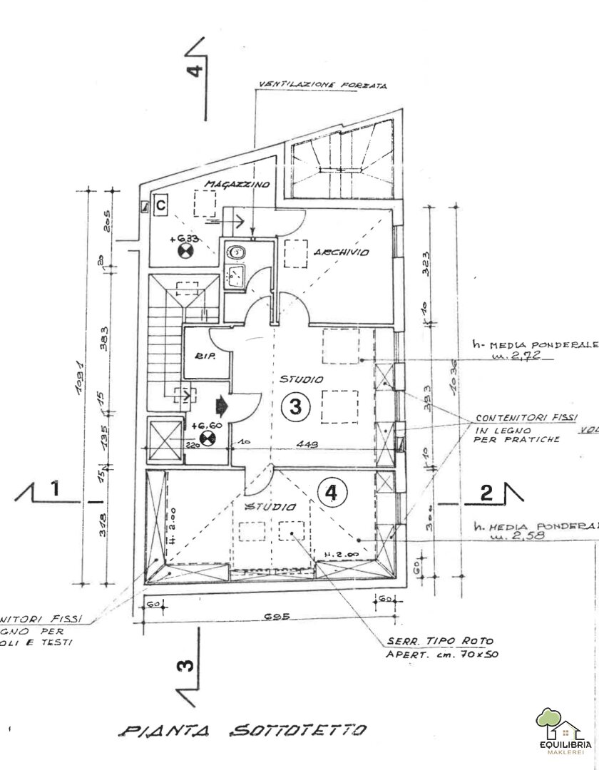
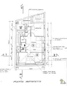
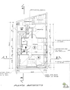
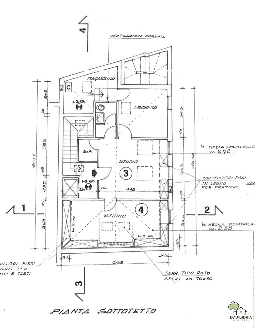
c) im DG befindet sich ein großes Studio, ein Vorraum mit Liftausstieg, ein WC, ein Abstellraum sowie weitere Stauräume
Die Immobilie befindet sich in einem guten Zustand und verfügt über sämtliche Ausstattungen wie Heizung, Klimaanlage, Alarmanlage, interne Kameras und Aufzug.
Für Fragen zu diesem Objekt oder die Vereinbarung eines Besichtigungstermins steht Ihnen Frau Claudia Engelhardt unter der Telefonnummer 0664 2019999, oder unter Claudia.engelhardt@equilibria.at zur Verfügung.
Hinweis gemäß Energieausweisvorlagegesetz: Ein Energieausweis wurde vom Eigentümer bzw. Verkäufer, nach unserer Aufklärung über die generell geltende Vorlagepflicht, sowie Aufforderung zu seiner Erstellung noch nicht vorgelegt. Daher gilt zumindest eine dem Alter und der Art des Gebäudes entsprechende Gesamtenergieeffizienz als vereinbart. Wir übernehmen keinerlei Gewähr oder Haftung für die tatsächliche Energieeffizienz der angebotenen Immobilie.
