SIE WOLLTEN SCHON IMMER URBAN WOHNEN?
IN EINER SCHÖNEN UND HELLEN, SEHR GUT ANGELEGTEN WOHNUNG MIT TERRASSE UND BLICK INS GRÜNE?
IHR FRÜHSTÜCK IN RUHE IM FREIEN ZU GENIESSEN WÄRE MIT NICHTS ZU TOPPEN?
DER MIETBEGINN MIT SEPTEMBER 2019 IST FÜR SIE IDEAL?
DANN HABEN WIR GENAU DIE PERFEKTE WOHNUNG FÜR SIE!
Abends freuen Sie sich darauf die Vitalität der Wiener Kunst-Institiution "Metropol" zu erleben und mit Ihren Freunden bei einer guten Flasche Wein auf der Dachterrasse gesellig beisammen zu sein? Dann sind sie hier bei uns genau richtig!
WOHNUNG & HAUS:
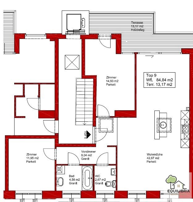
Vom zentralen Vorzimmer aus gelangen Sie ins Granit-Bad mit Wanne + Dusche, in das separate WC mit Handwaschbecken, in die beiden größzügigen Zimmer und den großen Wohnbereich (ca. 43m²) mit integrierter, voll ausgestatteter Küche mit Dunstabzug ins Freie. Diese Wohnküche ist so großzügig konzipiert, dass viele Möblierungsvarianten machbar sind. Die Terrasse blickt direkt auf die grünen Blätter eines im Hofbereich stehenden Baumes. Eine einzigartige, urbane und dennoch erholsame Atmosphäre. Der Boden Ist Massiv Parkett Eiche.
Das sanierte Haus bietet alle Vorzüge eines Neubaus (moderner Lift mit Aussichtsfenster, saubere Allgemeinflächen) und liegt in der Geblergasse 50.
LAGE & WOHNUMGEBUNG:
Die Hernalser Hauptstraße sowie der Elterleinplatz sorgen für ein vielfaches Angebot an Nahversorgung.
Die U6 und die Straßenbahnlinie 43 erreichen Sie zu Fuß in nur 10 Minuten. Die geplante U5 wird in Zukunft auch das umliegende Verkehrsnetz erweitern.
PREISINFORMATION:
Der brutto Mietpreis beläuft sich inklusive BK, LK, inkl. USt. auf EUR 1.799,05.-
INTERESSE?
Für nähere Informationen und die Vereinbarung eines Besichtigungstermins ,steht Ihnen Herr Wolfgang Konsel gerne unter der Mobilnummer +43 (0)676 3505425 ,oder per Email wolfgang.konsel@equilibria zur Verfügung.
Wir erlauben uns auf ein wirtschaftliches Naheverhältnis zum Abgeber hinzuweisen.
Der Immobilienmakler erklärt, dass er – entgegen dem in der Immobilienwirtschaft üblichen Geschäftsgebrauch des Doppelmaklers – einseitig nur für den Vermieter tätig ist.
Infrastruktur / Entfernungen
Gesundheit
Arzt <100m
Apotheke <250m
Klinik <225m
Krankenhaus <775m
Kinder & Schulen
Schule <100m
Kindergarten <250m
Universität <1.150m
Höhere Schule <925m
Nahversorgung
Supermarkt <150m
Bäckerei <125m
Einkaufszentrum <325m
Sonstige
Geldautomat <200m
Bank <200m
Post <350m
Polizei <400m
Verkehr
Bus <225m
U-Bahn <575m
Straßenbahn <225m
Bahnhof <575m
Autobahnanschluss <3.350m
Angaben Entfernung Luftlinie / Quelle: OpenStreetMap
