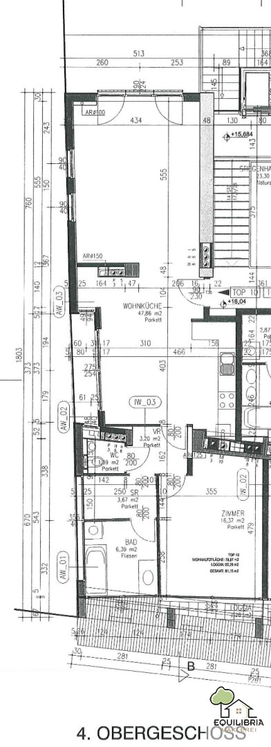
Die helle Dachgeschosswohnung verfügt über eine Gesamtfläche von 81,15 m² (inklusive ca. 2,5 m² Loggia) und überzeugt durch eine durchdachte Raumaufteilung.
Die Wohnung gliedert sich in drei gut geschnittene Zimmer:
-
ein großzügiges Wohnzimmer mit schönem Blick ins Grüne und über die Dächer Wiens,
-
ein separates Ess- bzw. Küchzimmer mit voll ausgestatteter Einbauküche (inkl. aller Geräte und ausreichend Stauraum),
-
sowie ein ruhiges Schlafzimmer, das ebenfalls mit einem angenehmen Ausblick punktet.
Alle Räume wirken durch die Dachgeschosslage besonders hell und freundlich.
Das Badezimmer ist sehr lichtdurchflutet und verfügt über eine Badewanne, einen Spiegelschrank sowie einen Waschmaschinenanschluss. Ein separates WC sorgt für zusätzlichen Komfort. Ergänzend steht ein kleiner begehbarer Kleiderschrank zur Verfügung, der praktischen Stauraum bietet.
Die Wohnung eignet sich ideal für Paare, die großzügig wohnen möchten, ebenso wie für eine WG, da die Zimmer gut nutzbar und separat begehbar sind. Eine attraktive Dachgeschosswohnung in gefragter Lage – perfekt für alle, die zentrales Wohnen mit Ausblick und Lebensqualität verbinden möchten.
Wir weisen darauf hin, dass zwischen dem Vermittler und dem zu vermittelnden Dritten ein familiäres oder wirtschaftliches Naheverhältnis besteht.
Der Immobilienmakler erklärt, dass er – entgegen dem in der Immobilienwirtschaft üblichen Geschäftsgebrauch des Doppelmaklers – einseitig nur für den Vermieter tätig ist.
Infrastruktur / Entfernungen
Gesundheit
Arzt <250m
Apotheke <250m
Klinik <250m
Krankenhaus <750m
Kinder & Schulen
Schule <250m
Kindergarten <250m
Universität <750m
Höhere Schule <250m
Nahversorgung
Supermarkt <250m
Bäckerei <250m
Einkaufszentrum <250m
Sonstige
Geldautomat <250m
Bank <250m
Post <250m
Polizei <750m
Verkehr
Bus <250m
U-Bahn <250m
Straßenbahn <750m
Bahnhof <250m
Autobahnanschluss <1.500m
Angaben Entfernung Luftlinie / Quelle: OpenStreetMap
